FISHERMAN'S FLAT

With controlled costs and minimal areas, this apartment located in a construction area neighbourhood revealed it’s true dimension in a renovation where less, is actually more.

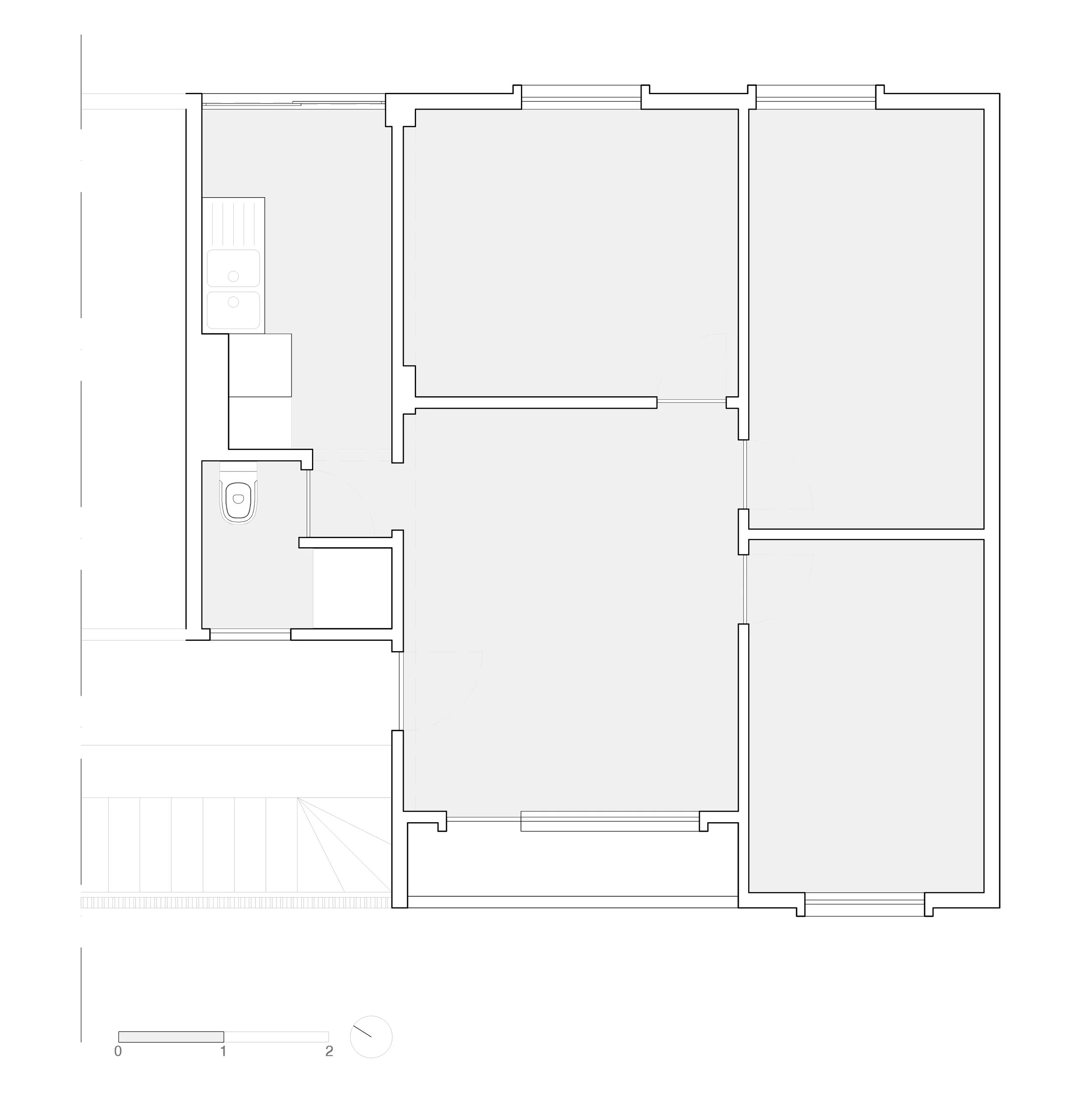
The operation was meticulous and assumed with great precision. Of the three small rooms, there are now two rest areas. The new central space can be used as a living area and also for eating meals and circulation between the other spaces.

The choice of removal of part of the walls allowed to generate confrontations between different perspectives and alignments. Space begins to seem larger. All existing doors are sliding panels, assuming a gray color to become plastic elements that allow a harmonious composition and diferent scales of privacy.

The materials chosen convey the feeling of lightness and simplicity. The kitchen area is assumed to be a strictly essential element, enclosing in itself all the equipment needed for efficient use.

With a very concise but delicate attitude, it was possible to transform a space that represented a line of action very marked by the control of costs and low quality of finishes, in a new space where less turns out to be actually more.

Previous
Previous

Maestro Taborda Apartment

Next
Next

Avenue Apartment